REQUEST A TOUR If you would like to see this home without being there in person, select the "Virtual Tour" option and your advisor will contact you to discuss available opportunities.
In-PersonVirtual Tour

$ 1,441
Active
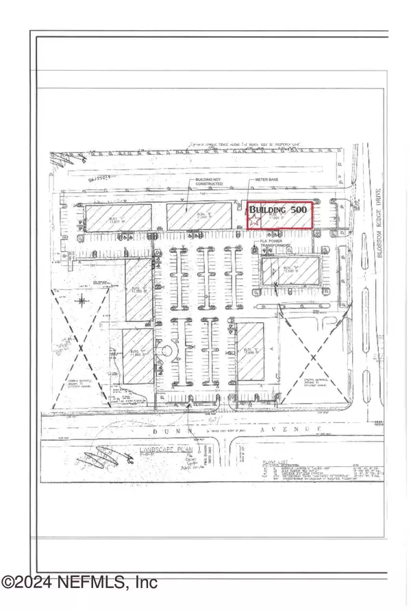
2255 DUNN AVE Jacksonville, FL 32218
11,900 SqFt
UPDATED:
Key Details
Property Type Commercial
Sub Type Office
Listing Status Active
Purchase Type For Rent
Square Footage 11,900 sqft
MLS Listing ID 2025050
Year Built 2005
Annual Tax Amount $11,956
Lot Size 4,356 Sqft
Acres 0.1
Property Sub-Type Office
Source realMLS (Northeast Florida Multiple Listing Service)
Property Description
UPDATE - LAST SUITE OF 1730 SQ FT AVAILABLE - DON'T MISS OUT ON THIS SPACE NOW RENTING FOR $10.00 SQ FT.
Up to 6,710 sq ft of Retail/Office Space Available for Lease in North Jacksonville, right off the busy street of Dunn Ave. Available space includes 3,250 sq. ft of a Partially Completed Medical Office Buildout, which can be divided into two separate 1,625 sq. ft. office spaces, or there are 2- 1,730 sq. ft. Raw (In need of complete buildout) office spaces that can be rented individually or together. Advertised Lease price is based on one of the 1,730 sq ft units.
Up to 6,710 sq ft of Retail/Office Space Available for Lease in North Jacksonville, right off the busy street of Dunn Ave. Available space includes 3,250 sq. ft of a Partially Completed Medical Office Buildout, which can be divided into two separate 1,625 sq. ft. office spaces, or there are 2- 1,730 sq. ft. Raw (In need of complete buildout) office spaces that can be rented individually or together. Advertised Lease price is based on one of the 1,730 sq ft units.
Location
State FL
County Duval
Area 091-Garden City/Airport
Direction Located off of Blossom Ridge Dr and Dunn Ave in North Jacksonville.
Exterior
Parking Features Parking Lot
Private Pool No
Building
Lot Description Other
Water Public
Others
Tax ID 1985200126
Listed by CB ISAAC REALTY • JESSICA GENHOLD
